
立磨機是目前粉磨效率高的工業制粉設備,時產量可達150噸每小時。為何立磨有如此高效的制造能力,立磨要穩定工作需借助于立磨減速機,比較常見的立磨減速機有那幾種呢,結構原理又是如何的?
比較常見的立磨減速機有二級減速式立磨齒輪減速機,三級齒輪減速式立磨減速機,雙行星三級減速式立磨減速機。在立磨系統中,主要設備通常包括:磨主電機,磨主齒輪減速機,減速機潤滑裝置,主電機稀油站,吐渣斗提,液壓裝置,磨輥潤滑裝置,密封風機,磨機噴水裝置,回轉鎖風閥,振動喂料機,立磨選粉裝置。
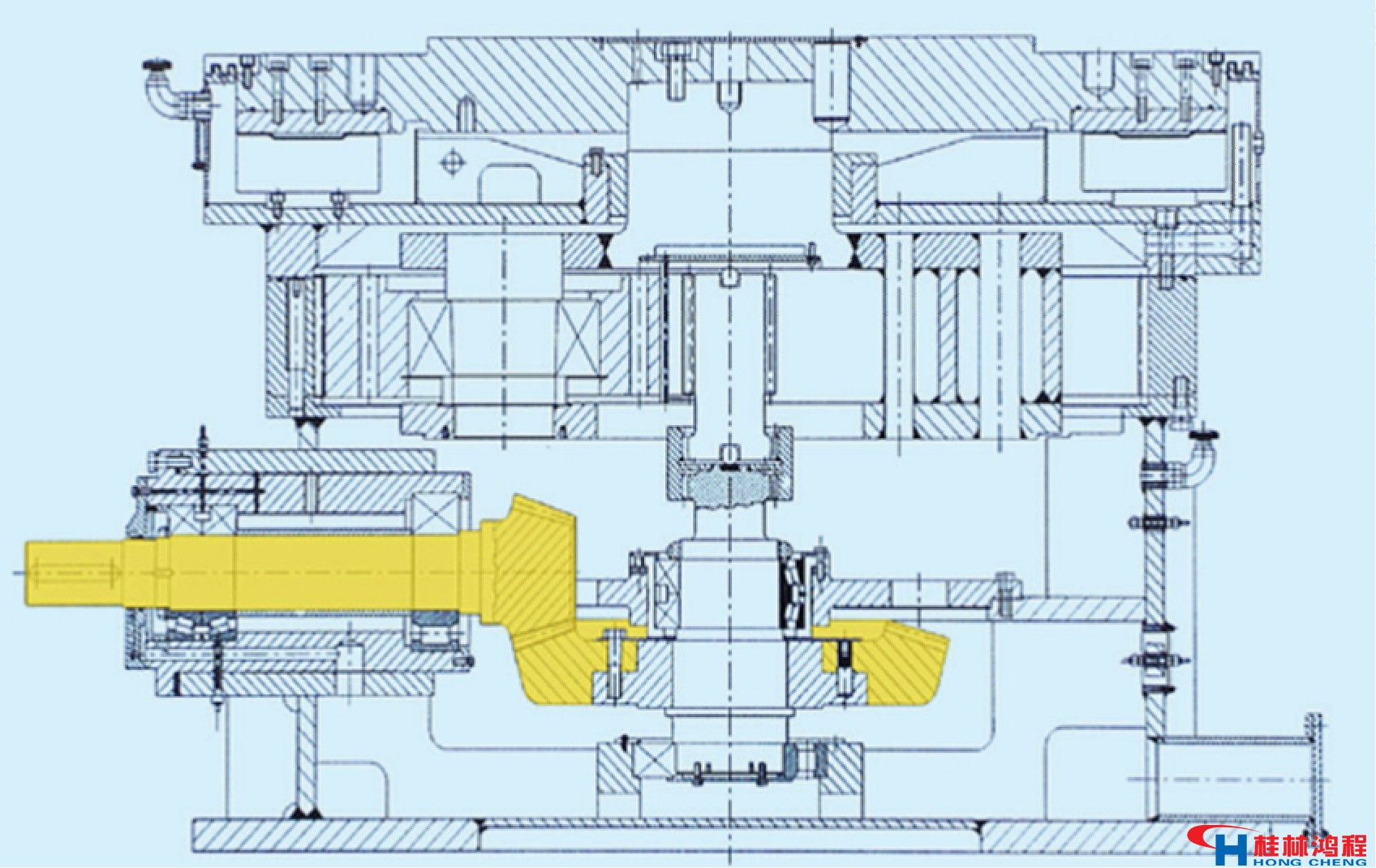
s(1)錐齒輪傳動部分
齒輪減速機輸入級為一對錐齒輪。大小齒輪均采用滲碳淬火鋼進行制造,并采用硬齒面加工方法加工而成,強度很高。小錐齒輪和大錐齒輪均通過軸承座裝入下殼體中,兩軸承座法蘭下設有調整墊,用于調整齒輪副接觸區的位置和齒側間隙。
(2)行星級齒輪傳動部分
行星級齒輪傳動主要由太陽輪、行星輪、內齒圈等組成。工作時太陽輪浮動,以便使其輪齒同時和三個行星輪均勻接觸,達到均載目的;行星輪安裝在行星架上,在繞自身軸線傳動的同時,也隨行星架繞太陽輪公轉。內齒圈固定在殼體上。太陽輪,行星輪均為滲碳淬火后磨齒齒輪,內齒圈為調質齒輪。
(3)鼓形內齒套
在兩級齒輪傳動之間設置了鼓形內齒套,其作用是連接兩級齒輪之間的傳動。內齒套隨行星級中的太陽輪一起浮動。
(4)平面滑動推力軸承
為承受磨機工作中的動靜載荷,減速機上部設置了平面滑動推力軸承,靠高壓油在推力盤和推力瓦之間行成一層動壓潤滑油膜進行工作。
二:三級齒輪減速式立磨減速機(見圖3)
為滿足立磨減速機大型化、大速比、大扭矩的要求,在二級減速結構基礎上,增力了一級平行軸傳動形成了一個新系列一一級錐齒輪,二級平行軸,三級行星齒輪的三級減速結構,以增大減速機的傳動比,同時也減小了錐齒輪的直徑,降低錐齒輪的加工成本,降低產品成本。
三、雙行星三級減速式立磨減速機(見圖4)

隨著立磨減速機在向大功率密度方向發展,減速機結構中又以行星傳動的結構最緊湊、功率密度。在總結二級減速和三級減速的經驗基礎上,誕生了由一級錐齒輪,二、三級行星齒輪的新三級減速結構。該結構減速機減速比更高、傳遞功率更大、體積更小,重量更輕。
桂林鴻程是專業的立磨生產廠家,生產各種立磨配件,其中自已研發了穩定耐用的立磨減速機,配備在HLM立磨和HLMX超細立磨生產線中。給立磨穩定高產提供了強大的保證。